 |
 |
| The
Leyendecker Companies |
 |
|
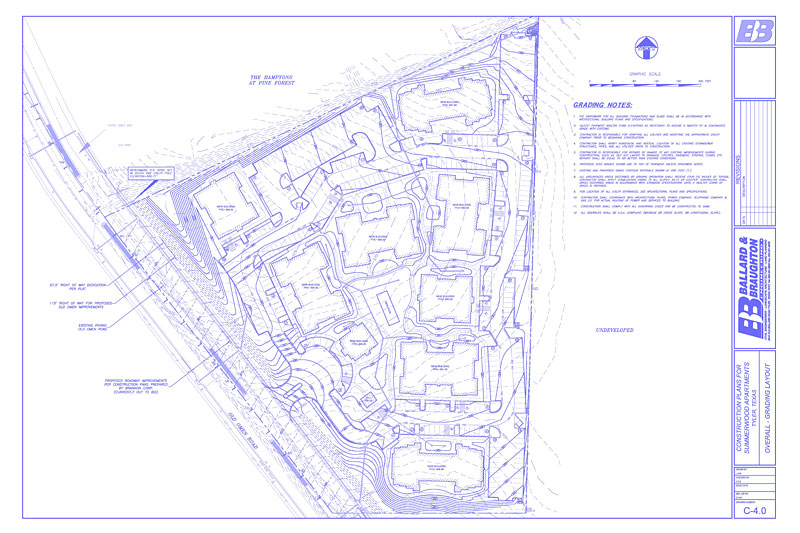
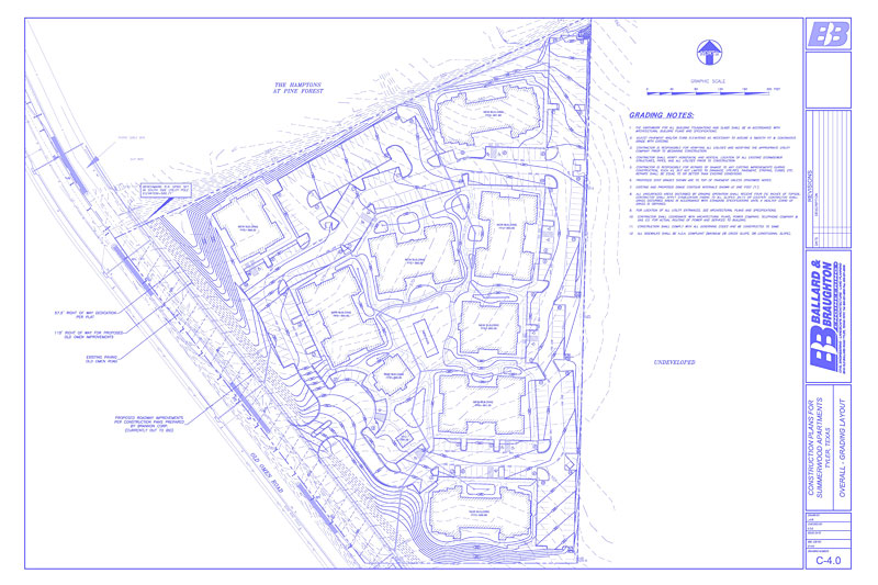
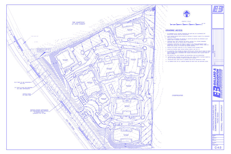
Summerwood Apartment Complex |
 |
|
 |
 |
Provide
Civil Construction plans for a Multi-Family
Apartments, associated parking and utilities.
Civil plans included; site, grading,
drainage and utility plans as well as
a Storm Water Pollution Protection Plan
(SWPPP) and associated documents.
www.leyendeckergroup.com |
 |
|
 |
 |
 |
 |
| Multi-Family/Apartment
Complex |
| |
 |
 |
| Tyler, Texas |
| |
 |
 |
| 8 +/- Acres |
| |
 |
 |
City of
Tyler, TxDOT and TCEQ (Gov entities) |
 |
|
 |
|