 |
 |
| Fehr
Grossman Cox Architects |
 |
|
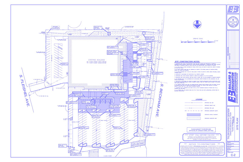
Digestive Health Specialists of
Tyler |
 |
|
 |
 |
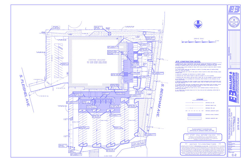
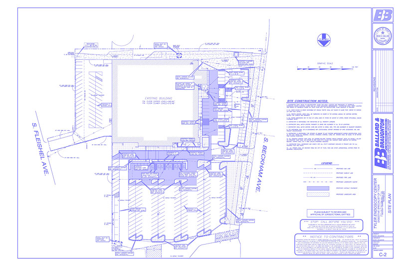
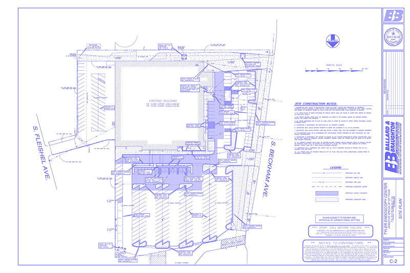
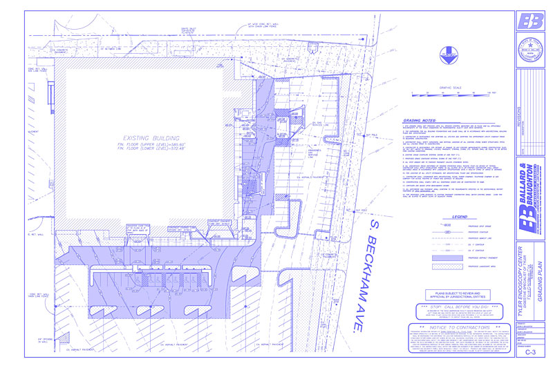
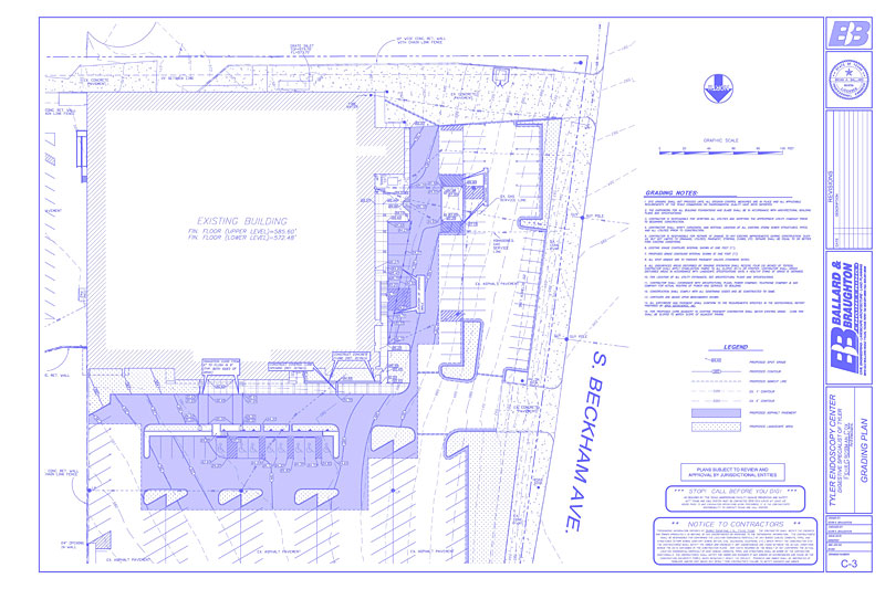
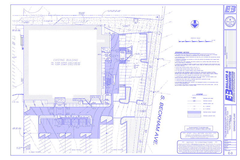
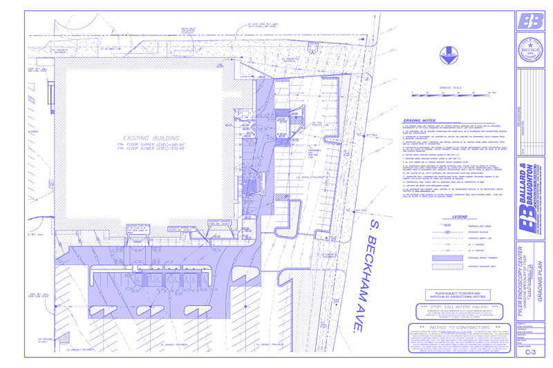
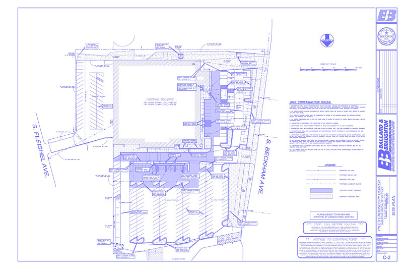
Provide
Civil Construction plans for an approximate
20,000 s.f. commercial building, associated
parking and utilities. Civil plans included;
site, grading and drainage plans.
www.dhstyler.com |
 |
|
 |
 |
 |
 |
| Commercial/Retail |
| |
 |
 |
| Tyler, Texas |
| |
 |
 |
| Project
has been constructed |
| |
 |
 |
| 5 +/- Acres |
| |
 |
 |
| City of
Tyler (Gov entities) |
 |
|
 |
|