 |
 |
| Ralph
Martin |
 |
|
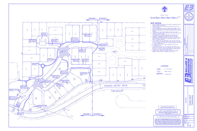
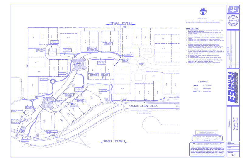
The Villas at Eagles Bluff |
 |
|
 |
 |
Planning
and Design for the drainage and utility
infrastructure of the development. Civil
plans included; Roadway Plan and Profiles
for Street grades, drainage and utilities
as well as a Storm Water Pollution Protection
Plan (SWPPP) and associated documents.
www.eaglesbluff.com |
 |
|
 |
 |
 |
 |
| Residential
Subdivision |
| |
 |
 |
| Bullard,
TX |
| |
 |
 |
| Project
is currently under development |
| |
 |
 |
| 7 +/- Acres |
| |
 |
 |
Cherokee
County and TCEQ (Gov entities) |
 |
|
 |
|