 |
 |
| Central
Baptist Church |
 |
|
 |
 |
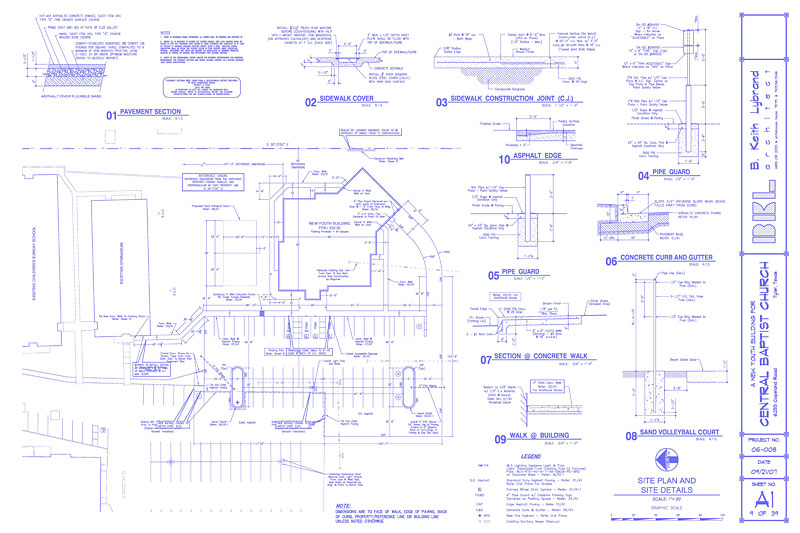
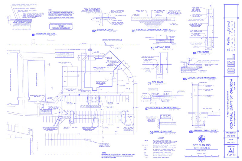
Provide
Civil Construction plans for an approximate
15,000 s.f. Youth building, associated
parking and utilities. Civil plans included;
site, grading, drainage and utility
plans as well as a Storm Water Pollution
Protection Plan (SWPPP) and associated
documents..
www.onecentralthing.com |
 |
|
 |
 |
 |
 |
| Churches |
| |
 |
 |
| Tyler, TX |
| |
 |
 |
| Project
has been constructed |
| |
 |
 |
| N/A |
| |
 |
 |
City of
Tyler, TxDOT and TCEQ (Gov entities) |
 |
|
 |
|