 |
 |
| Siebenlist
Architects |
 |
|
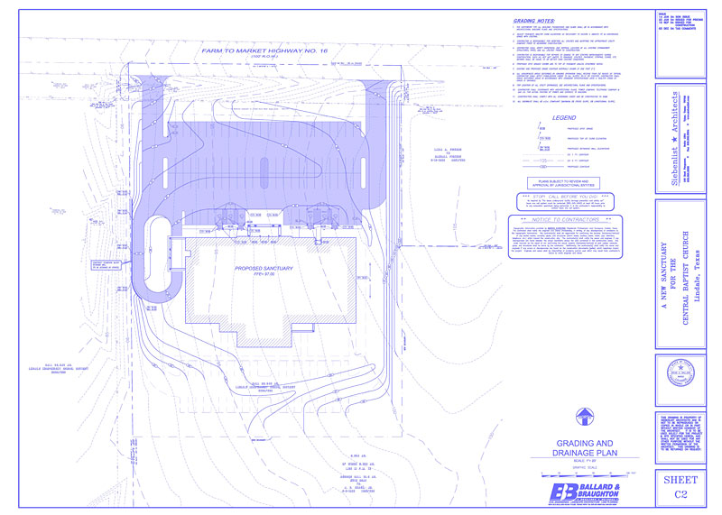
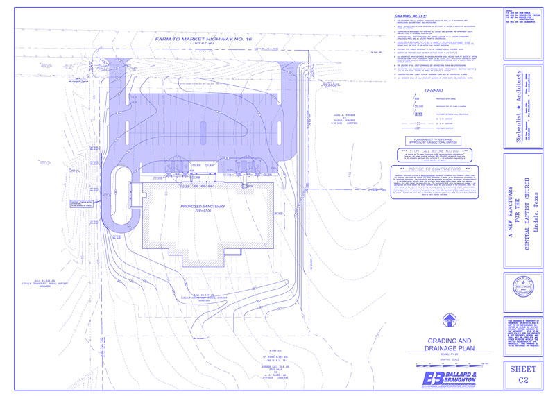
Lindale Central Baptist Church |
 |
|
 |
 |
Provide
Civil Construction plans for an approximate
22,000 s.f. Church, associated parking
and utilities. Civil plans included;
site, grading, drainage and utility
plans as well as a Storm Water Pollution
Protection Plan (SWPPP) and associated
documents.
www.siebenlist.com |
 |
|
 |
 |
 |
 |
| Church |
| |
 |
 |
| Lindale,
TX |
| |
 |
 |
| Project
has been constructed |
| |
 |
 |
| 3 +/- Acres |
| |
 |
 |
City of
Tyler, TxDOT and TCEQ (Gov entities) |
 |
|
 |
|