 |
 |
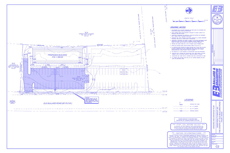
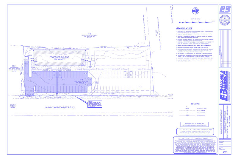
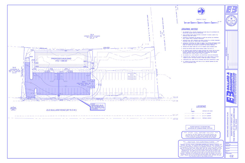
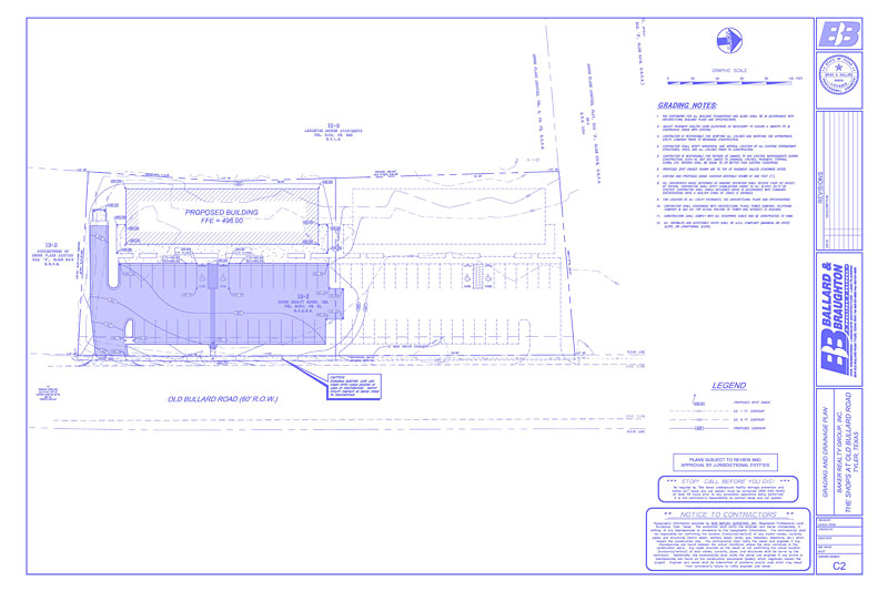
| Old
Bullard Retail Center |
 |
|
 |
 |
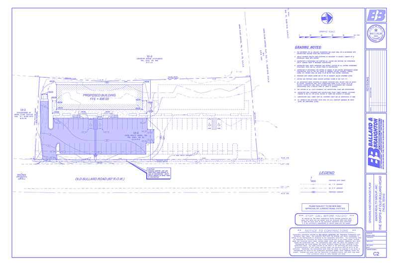
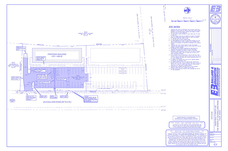
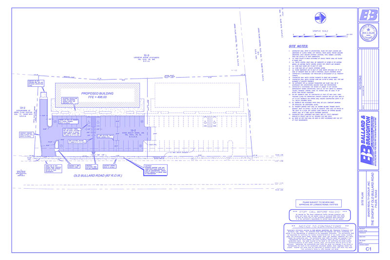
| Provide
Civil Construction plans for an approximate
7,000 s.f. Retail building, associated
parking and utilities. Civil plans included;
site, grading, drainage and utility
plans as well as a Storm Water Pollution
Protection Plan (SWPPP) and associated
documents. |
 |
|
 |
 |
 |
 |
| Commercial/Retail |
| |
 |
 |
| Tyler, TX |
| |
 |
 |
| Project
has been constructed |
| |
 |
 |
| 1+/- Acres |
| |
 |
 |
City of
Tyler, TxDOT and TCEQ (Gov entities) |
 |
|
 |
|