 |
 |
Ballard
& Braughton Engineering
Boys and Girls Club of East Texas |
 |
|
 |
 |
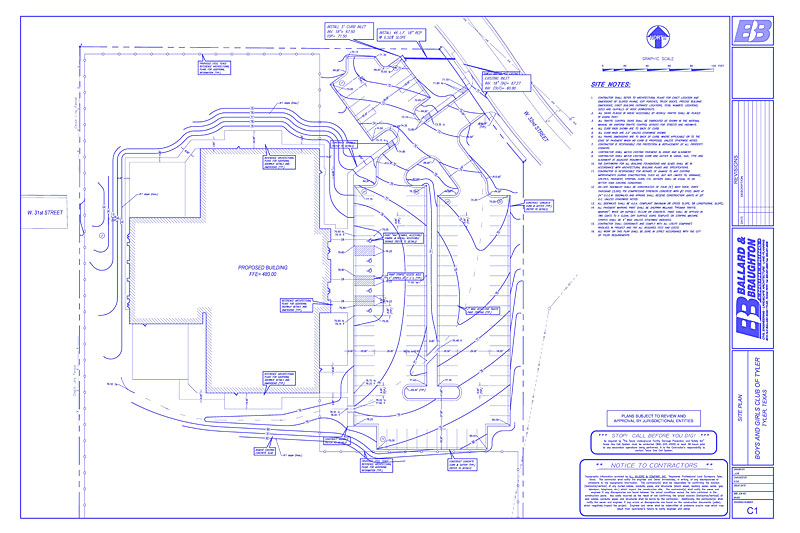
Provide
Civil Construction plans for an approximate
30,000 s.f. commercial building, associated
parking and utilities. Civil plans included;
site, grading, drainage and utility
plans as well as a Storm Water Pollution
Protection Plan (SWPPP) and associated
documents.
www.bgcet.org |
 |
|
 |
 |
 |
 |
| Commercial/Retail |
| |
 |
 |
| Tyler, Texas |
| |
 |
 |
| Project
has been constructed |
| |
 |
 |
| 3.5 +/-
acres |
| |
 |
 |
City of
Tyler, TxDOT and TCEQ (Gov entities) |
 |
|
 |
|