Signature Hospitality, LLC

Courtyard Marriott Hotel
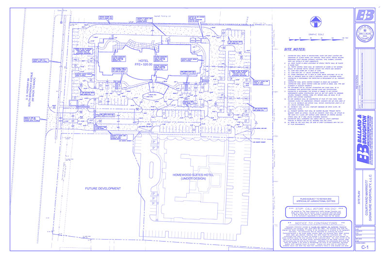
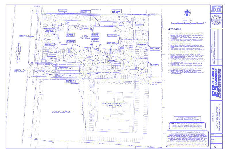
Provide Civil Construction plans for an approximate Three Story 23,000 s.f. Hotel, associated parking and utilities. Civil plans included; site, grading, drainage and utility plans as well as a Storm Water Pollution Protection Plan (SWPPP) and associated documents.

www.sps.cc
Hotel
 
Tyler, TX
 
Project has been constructed
 
3.5 +/- Acres
 
City of Tyler, TxDOT and TCEQ
(Gov entities)
BALLARD & BRAUGHTON, PLLC   /   3815 OLD BULLARD ROAD  /   TYLER, TEXAS 75701    + Phone: 903-531-9800    + Fax: 903-531-9839

ABOUT US  |  OUR SERVICES  |  FEATURED PROJECTS  |  REFERENCES  |  LINKS  |  EMPLOYMENT OPPORTUNITIES  |  CONTACT US

© Ballard & Braughton PLLC, All Rights Reserved. |  Website Designed by 3 Degree Media, Inc.