 |
 |
| Oak
Hill |
 |
|
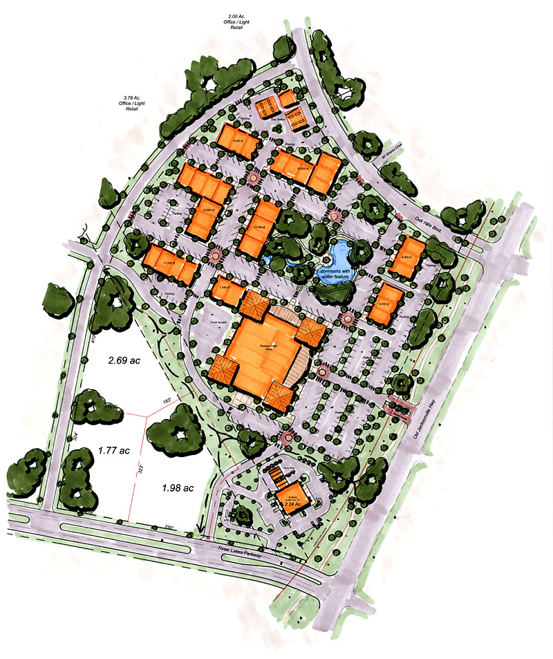
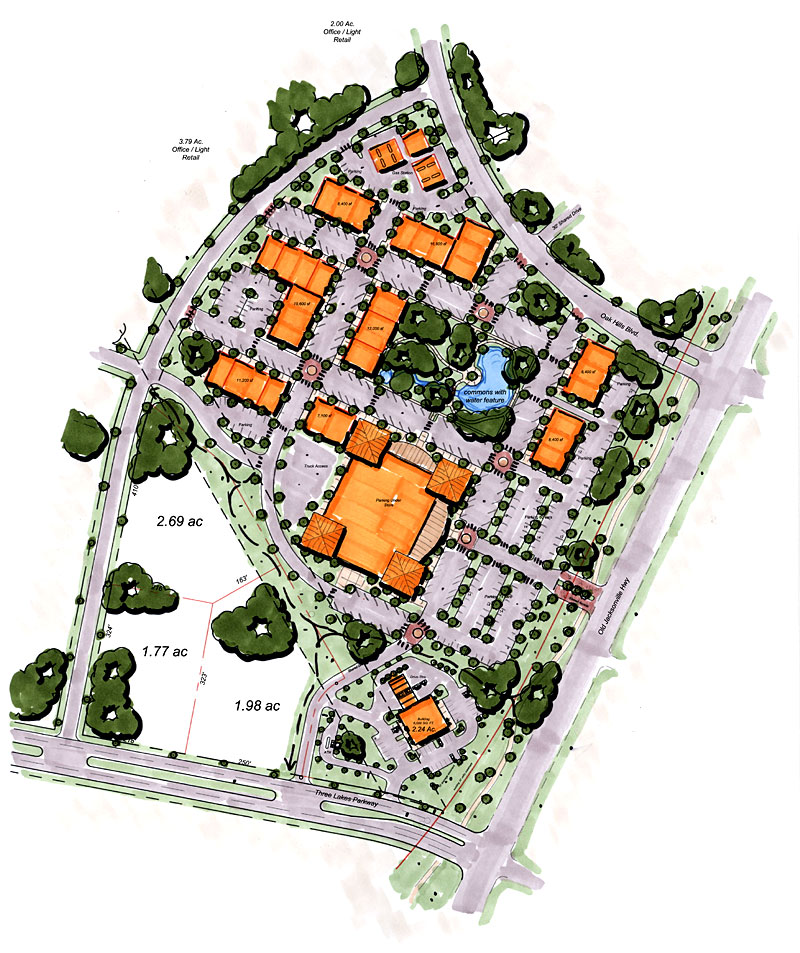
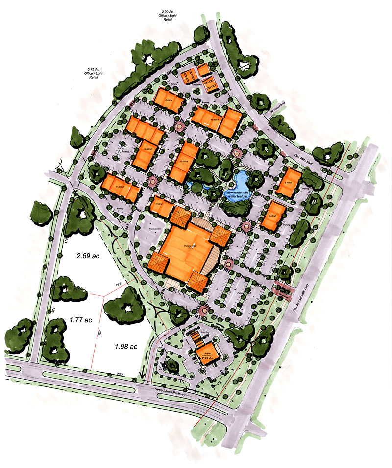
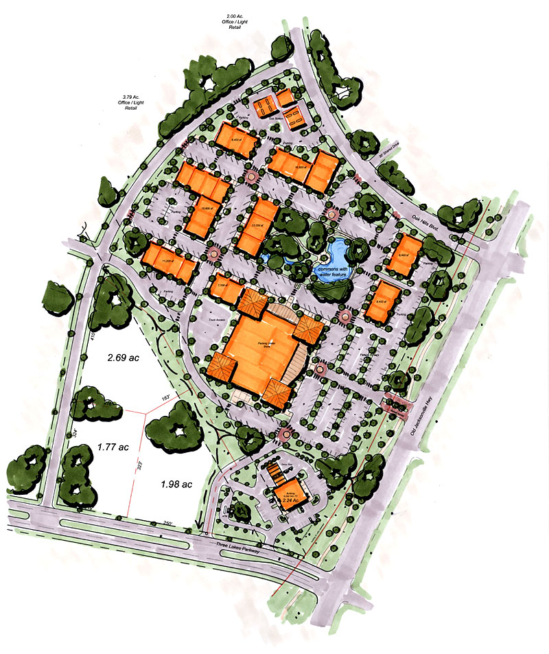
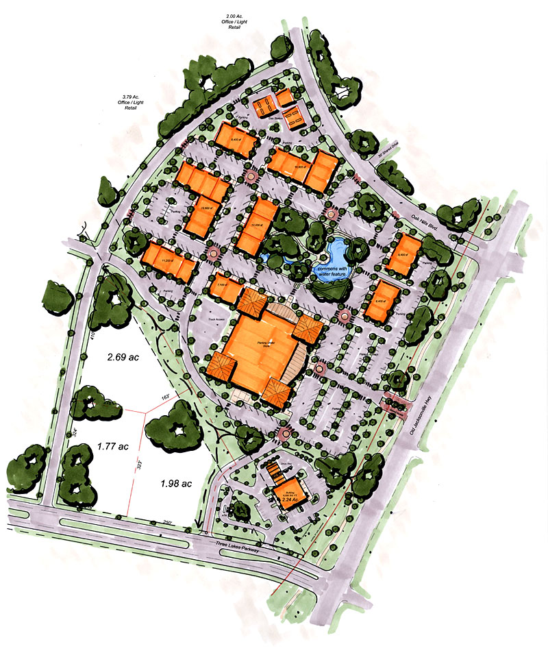
Mixed Use Master Planned Community |
 |
|
 |
 |
Planning
and Design for the drainage and utility
infrastructure of the development. Civil
plans included; Roadway Plan and Profiles
for Street grades, drainage and utilities
as well as a Storm Water Pollution Protection
Plan (SWPPP) and associated documents.
Project Notes: Required
extensive coordination with TxDOT and
City of Tyler for extension of offsite
drainage improvements.
www.oakpropertiestx.com |
 |
|
 |
 |
 |
 |
| Mixed Use/Master
Planned Community |
| |
 |
 |
| Tyler, Texas |
| |
 |
 |
| Project
is currently under development |
| |
 |
 |
| 195 +/-
Acres |
| |
 |
 |
City of
Tyler, TxDOT and TCEQ (Gov entities) |
 |
|
 |
|